Villa singola in vendita

Bellante, Via Tagliamento
€ 90.000
250 Mq 250 Mq
3 bagni 3 bagni

Villa singola in vendita

Bellante, Via Tagliamento

Descrizione annuncio

A Bellante, in via Tagliamento, in un contesto tranquillo e immerso nel verde delle colline teramane, proponiamo in vendita un fabbricato in costruzione privo di copertura.

Con una superficie totale di circa 250 mq, questa proprietà rappresenta un’opportunità per chi desidera costruire la casa dei propri sogni in un contesto tranquillo, riservato e a contatto con la natura.

Attualmente è disponibile un progetto approvato per la costruzione di una villa bifamiliare, ma apportando una modifica alla concessione edilizia vi è la possibilità di destinare la struttura ad uso ricettivo, come agriturismo, B&B o casa vacanze, sfruttando la posizione suggestiva e il vasto terreno circostante.

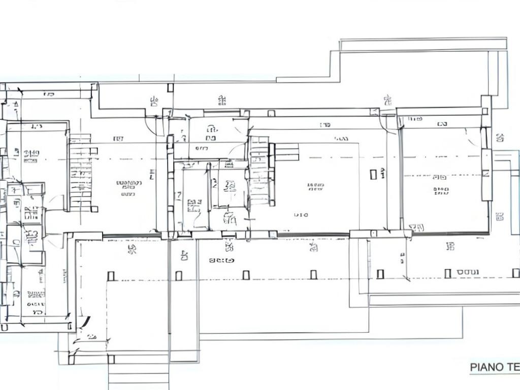
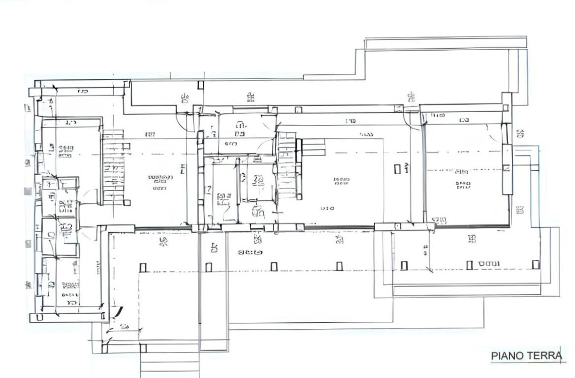
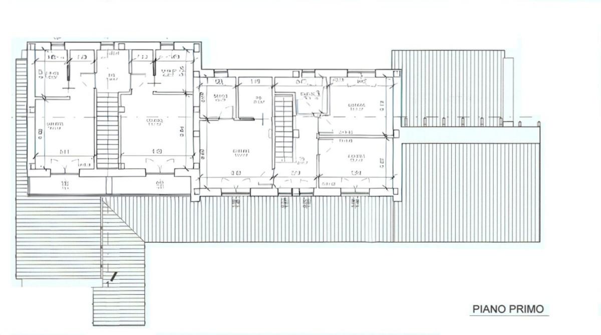
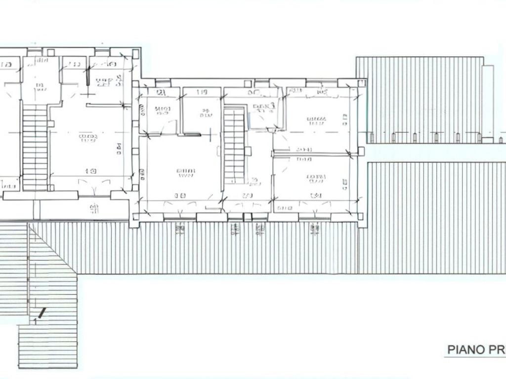
Il progetto residenziale prevede, al piano terra, un’ampia zona giorno open space composta da soggiorno, cucina a vista e bagno. Tutta la zona gode di un accesso diretto al portico esterno e al giardino privato, dove è possibile realizzare una piscina per momenti di relax all’aperto.

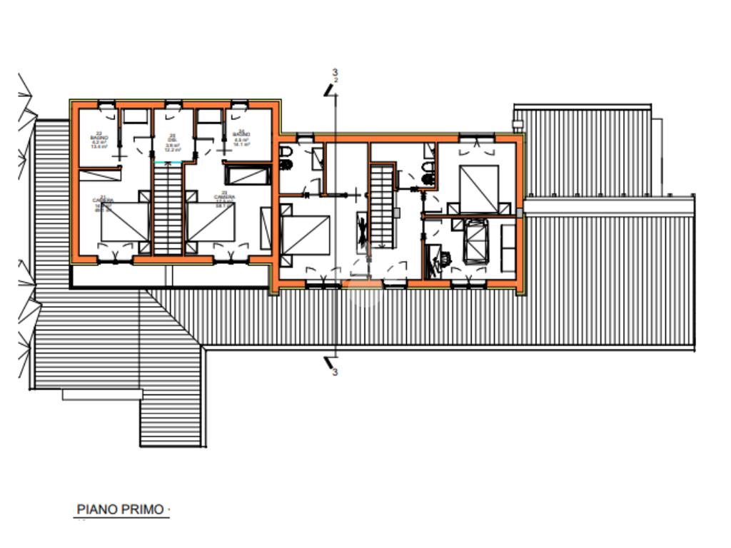
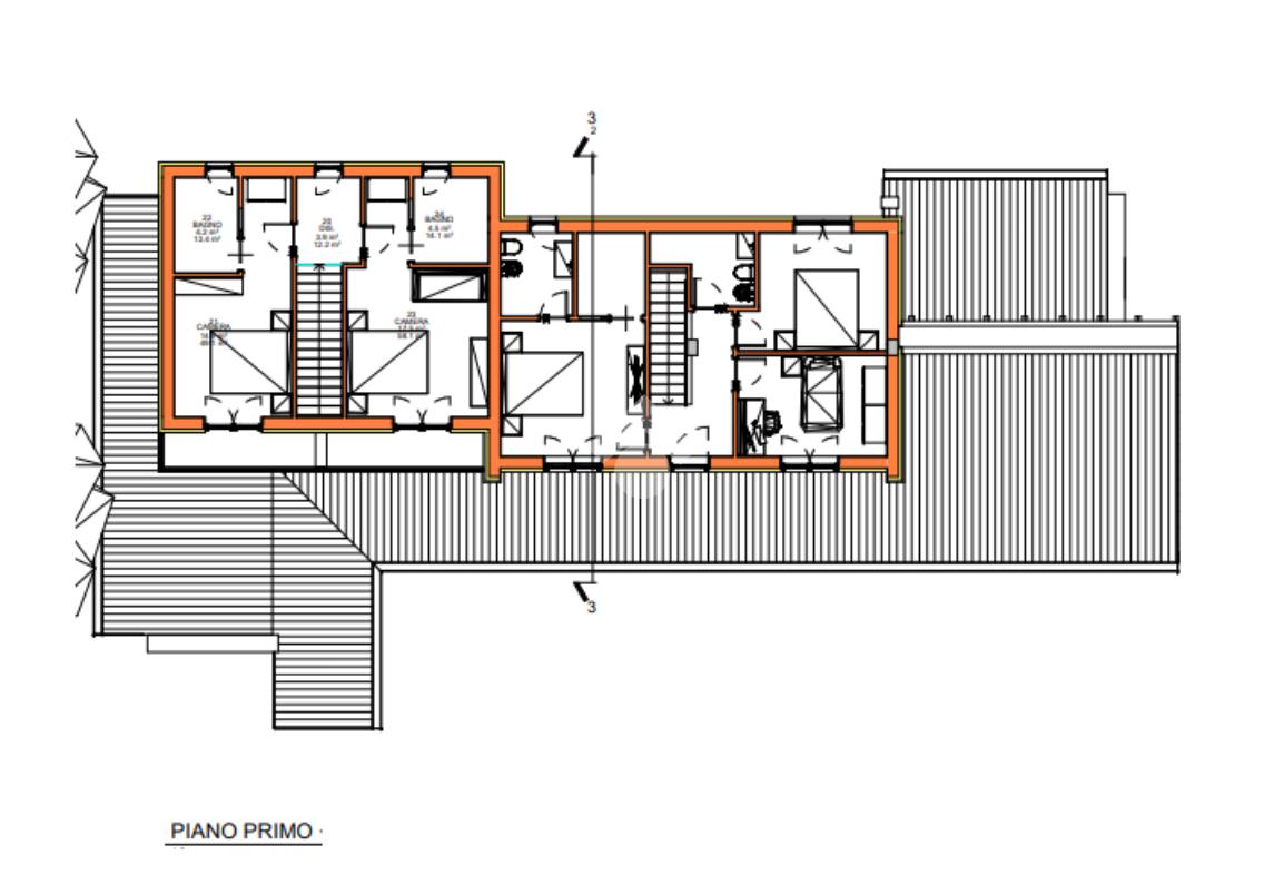
Salendo al piano superiore, la zona notte è progettata con tre camere matrimoniali, di cui una con bagno privato, un ripostiglio e un secondo bagno a servizio delle altre camere.

A completare la proprietà, un terreno agricolo di circa 19.000 mq, perfetto per chi ama la natura e desidera vivere in un ambiente riservato.

Questa soluzione offre la possibilità di personalizzare gli spazi e le finiture secondo i propri gusti ed esigenze.

Contattaci per ulteriori informazioni o per fissare una visita.

Mostra tutto

Caratteristiche

Rif.:
61128430
Piano:
Su più livelli di 2
Totale piani:
2
Posti auto:
1
Camere da letto:
3
Arredamento:
Assente
Mostra tutto
Prezzo Prezzo
€ 90.000
Rata mutuo Rata mutuo
€ 428 / mese
Proponi il tuo prezzoProponi il tuo prezzo

Classe Energetica

Questo immobile è esente da classe energetica
Anno di costruzione:
2025
Riscaldamento:
Assente

Ti interessa visionare l'immobile?

Fissa un appuntamento  Fissa un appuntamento

Richiedi informazioni

Clicca su Leggi per aprire l'informativa
* Questi campi sono obbligatori

Calcola il tuo mutuo

Semplice e senza impegno
Anticipo

( % )
Mutuo

( % )

pochi semplici passi

inserisci i tuoi dati
Questionario completato
Grazie per aver richiesto un appuntamento senza impegno con un nostro Consulente del Credito e Assicurativo.

Hai inserito correttamente tutti i dati necessari e a breve riceverai una e-mail con un link da convalidare per inviare i tuoi dati.
Affiliato
Gruppo Progresso Srl
P.zza Progresso, 6/8 64020 Teramo (TE)

Il nostro staff


  • Adelio D'Agostino
    Affiliato

  • Gianni Teseo
    Collaboratore
P.zza Progresso, 6/8 64020 Teramo (TE)
Zona: San Nicolo a Tordino
Mostra su mappa
Orari: Dal Lunedì al Venerdì dalle 9.00 alle 13.00 e dalle 15.30 alle 19.30; Sabato dalle 9.00 alle 13.00 e dalle 15.30 alle 19.00
Affiliato
Gruppo Progresso Srl
P.zza Progresso, 6/8 64020 Teramo (TE)

2026 Tecnocasa Franchising S.p.A. - P. IVA 08365160152 - Via Monte Bianco 60/A 20089 Rozzano (MI). Ogni agenzia ha un proprio titolare ed è autonoma. Privacy policy | Policy utilizzo | Cookie policy